Erdarbeiten / Spezialtiefbau
Kwartiersgarage Alanbrooke
Um Ihr Angebot auszufüllen und abzugeben, . Erfahren Sie hier mehr darüber, wie Sie mit Cosuno neue Ausschreibungen finden können.

Kalkulationsangebot einreichen

bis

Leistungsverzeichnis

OZ
Beschreibung
Typ
Menge
Einheit
Einheitspreis EUR
Gesamtbetrag netto EUR
Projektinformationen Projektname:  Kwartiersgarage_Paderborn  (bei Schriftverkehr immer angeben) Projektnummer: 2501  (bei Schriftverkehr immer angeben 1. Baubeschreibung Die Bauherren Bruchteilsgemeinschaft Tiefgarage Alanbrooke beabsichtígen die Errichtung eine Tiefgarage für den Ausbau eines Gewerbezentrums mit einem kreativwirtschaftlichen Schwerpunkt in Block 4 der ehemaligen Alanbrooke-Kaserne. Die Tiefgarage wird in Stahlbeton als WU-Konstruktion realisiert. Es wird eine nicht bewirtschaftete Tiefgarage mit barrierefreiem Aufzug. Des Weiteren wird ein 2-geschossiges Aufstiegsgebäude mit WCs, Technikräume, etc. errichtet. Die Leistung dieser Ausschreibung umfasst sämtliche hierfür erforderlichen Arbeiten für das Gewerk Erweiterte Rohbauarbeiten inkl. Tiefbauarbeiten. Auf Grund der beengten Situation vor Ort ist der exakte Bauablauf hinsichtlich Aufstellens von z. B. Gerüsten, Treppentürmen, Mulden und Schuttcontainer, Bau- und Mobilkränen und die Beschickung der Baustelle mit erforderlichen Arbeits- und Baumaterialien genauestens zu planen. Sämtliche sich hieraus ergebenden Erschwernisse sind in die Einheitspreise mit einzukalkulieren. Die Zuwegung zur Baustelle erfolgt westlich über die Erzbergerstraße / Alan-Brooke-Weg auf das Gelände des Bauherren. Arbeits- und Lagerplätze: Im Außenbereich sind Arbeits- und Lagerflächen, sowie Flächen für die Baustelleneinrichtung in recht begrenztem Umfang vorgesehen. Alle für die direkte Baustelle notwendigen Flächen sind vom Auftragnehmer auf seine Kosten herzurichten. Die Flächen sind mit dem Auftraggeber und der Bauleitung abzustimmen und nach Beendigung der Arbeiten wieder sauber zu hinterlassen. Parkplätze: Dauerhafte Parkplätze für Firmenfahrzeuge können direkt am Objekt mangels Platz und erforderlicher Flucht- und Rettungswege sowie des Verkehrs auf dem Betriebsgelände nicht bzw. nur sehr begrenzt angeboten werden. Sämtliche sich hieraus ergebenden Erschwernisse sind in die Einheitspreise mit einzukalkulieren. 2. Terminlicher Ablauf Beginn Technische Bearbeitung: direkt nach Auftragserteilung Ausführungsbeginn: 23.02.2026 Ausführungsende: 28.08.2026
Projektinformationen
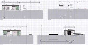
ANL - Ausschreibungsanlagen ANL - Anlagen der Leistungsbeschreibung Der Ausschreibung sind als Anlage Bauzeichnungen (Grundrisse, Ansichten, Schnitte, Übersichtspläne, Detailpläne, Handskizzen etc.) sowie in Einzelfällen ein Terminplan und sonstige bauvorhabenspezifische Unterlagen beigefügt. Diese Unterlagen sind Bestandteil der Ausschreibung und werden im Fall der Auftragserteilung Vertragsbestandteil. Folgende Unterlagen sind der Ausschreibung im Einzelnen beigefügt: - Planung Architektur - Statik - Baugrundgutachten - Entwässerung - Fotos
ANL - Ausschreibungsanlagen
Hinweis Hinweis Die in der Statik genannten Planungsfabrikate dienen ausschließlich zum besseren Verständnis der Anforderungen des Leistungsverzeichnisses.
Hinweis
Erdarbeiten Erdarbeiten
Erdarbeiten
2 Erdarbeiten
2
Erdarbeiten
Erdarbeiten
Erdarbeiten
2. 10 Vegetationfläche roden Vegetationfläche roden Vegetationfläche von Büschen, Pflanzen, Wildwuchs, Bodendeckern, Laub und Gestrüpp roden und befreien. Schnittgut laden und entsorgen inkl. Kippgebühren.
2. 10
Vegetationfläche roden
2.500,00
2. 20 Baustraße herstellen Baustraße herstellen Baustraße aus Schotter 0/45 im Zuge der Erdbauarbeiten sukzessive herstellen, wieder zurückbauen und das Material für die Verwendung in der Tragschicht. Stärke: ca. 30 cm Die Materialkosten werden über die o. g. Folgeposition der Schottertragschicht abgerechnet. Die Position berücksichtigt den Mehraufwand für die oben beschriebenen Arbeitsgänge. dabei ist auf die saubere Separierung zwischen Erdreich und Schotter für die spätere Wiederverwendung zu achten.
2. 20
Baustraße herstellen
800,00
2. 30 Oberboden abtragen, lagern, bis 30cm Oberboden abtragen, lagern, bis 30cm Oberboden, profilgerecht abtragen, laden, fördern und Bodengruppen getrennt lagern.
2. 30
Oberboden abtragen, lagern, bis 30cm
2.500,00
2. 40 Erdaushub Homogenbereich ERD 1 bis t= 5,00 m Erdaushub Homogenbereich ERD 1 bis t= 5,00 m Erdaushub von Material Homogenbereich ERD 1 (Bodenklasse 2-5) als Maschinenaushub. Homogenbereich ERD 1 gem. Baugrunduntersuchung IB Kleegräfe nebst Bohrprofilen vom 12.12.2023 Aushubtiefe bis ca. 5,00 m von OK Gelände. Das Aushubmaterial ist zu lösen, aufzuladen, abzufahren und auf einer selbst zu wählenden Kippe abzuladen inkl. Entsorgungskosten.
2. 40
Erdaushub Homogenbereich ERD 1 bis t= 5,00 m
6.500,00
2. 50 Erdaushub Homogenbereich ERD 2 bis t= 5,00 m Erdaushub Homogenbereich ERD 2 bis t= 5,00 m Erdaushub von Material Homogenbereich ERD 2 (Bodenklasse 6-7) als Maschinenaushub. Homogenbereich ERD 2 gem. Baugrunduntersuchung IB Kleegräfe nebst Bohrprofilen vom 12.12.2023 Aushubtiefe bis ca. 5,00 m von OK Gelände. Das Aushubmaterial ist zu lösen, aufzuladen, abzufahren und auf einer selbst zu wählenden Kippe abzuladen inkl. Entsorgungskosten.
2. 50
Erdaushub Homogenbereich ERD 2 bis t= 5,00 m
800,00
2. 60 Trennlage, Filtervlies Trennlage, Filtervlies Filtervlies aus Geotextilien, als Trennlage, auf Erdplanum, unter Frostschutz- / Tragschicht. GRK-Klasse: 3 Überlappung: mind. 20 cm Einbauort: Baugrube
2. 60
Trennlage, Filtervlies
1.500,00
2. 70 Baugrube/Arbeitsräume verfüllen, verdichten, Liefermaterial Baugrube/Arbeitsräume verfüllen, verdichten, Liefermaterial Verfüllen von Baugrube/Arbeitsräume, mit anzulieferndem Bodenmaterial, schichtweise einbauen (maximale Lagenmächtigkeit 30cm), verdichten aus aus gutegeprüften Mineralgemisch Güteschotter 0/45 mm HKS-Kalksteinschotter gebrochen, Mindestgüte: ´Frostschutzschicht´, Verdichtungsgrad: DPr mind. 100% gem. Baugrunduntersuchung IB Kleegräfe Abrechnung nach Lieferschein.
2. 70
Baugrube/Arbeitsräume verfüllen, verdichten, Liefermaterial
2.400,00
2. 80 Handschachtung, als Zulage Handschachtung, als Zulage Handschachtung zu Vorpositionen für Querschläge, zur Leitungserkundung, Aufsuchen von Bodenhindernissen o. ä., als Zulage.
2. 80
Handschachtung, als Zulage
20,00
2. 90 Bauschutt, Ziegelreste o. ä., als Zulage Bauschutt, Ziegelreste o. ä., als Zulage Bauschutt, Ziegelreste, Betonabbruch o. ä. aus den Vorpositionen aussortieren, laden und entsorgen inkl. Entsorgungskosten, als Zulage.
2. 90
Bauschutt, Ziegelreste o. ä., als Zulage
20,00
to
2.100 Schotterunterbau Schotterunterbau unter den Bodenplatten, als Tragschicht, d = 30 cm unter Bodenplatte Tiefgarage / 50cm unter Bodenplatte Rampe aus gutegeprüften Mineralgemisch Güteschotter 0/45 mm HKS-Kalksteinschotter gebrochen, Mindestgüte: ´Frostschutzschicht´, liefern und einbauen, incl. der erforderlichen Verdichtungsmaßnahmen. lt. Bodengutachten IB Kleegräße Abrechnung nach Lieferschein.
2.100
Schotterunterbau
400,00
2.110 Planum herstellen Planum herstellen vorh.Planum / Tragschicht höhengerecht abziehen, planieren und nachverdichten.
2.110
Planum herstellen
1.500,00
2.120 Zulage Ausbildung Rampe Zulage Ausbildung Rampe vorh.Planum als Rampe ausbilden als Zulage
2.120
Zulage Ausbildung Rampe
300,00
2.130 Statischer Plattendruckversuch Statischer Plattendruckversuch Statischer Plattendruckversuch zur Bestimmung des Verdichtungsgrades des neu einzubringenden Schotterunterbaus unter Sohle, Prüfverfahren gemäß DIN 18134. Der Ort der Erkundung wird auf Anweisung der Bauleitung festgelegt, inkl. Maschinen- bzw. Messgeräteeinsatz. Die Messergebnisse sind in schriftlicher Form dem AG bzw. der Bauleitung zu übergeben.
2.130
Statischer Plattendruckversuch
5,00
Stk
2.140 Dynamischer Plattendruckversuch Dynamischer Plattendruckversuch Dynamischer Plattendruckversuch mit leichtem Fallgewichtsgerät zur Bestimmung des Verdichtungsgrades des neu einzubringenden Schotterunterbaus, Prüfverfahren gemäß  TP BF-StB (Technische Prüfvorschriften für Boden und Fels im Straßenbau). Der Ort der Erkundung wird auf Anweisung der Bauleitung festgelegt, inkl. Maschinen- bzw. Meßgeräteeinsatz. Die Meßergebnisse sind in schriftlicher Form dem AG bzw. der Bauleitung zu übergeben.
2.140
Dynamischer Plattendruckversuch
5,00
Stk
2.170 Baugrube sichern, Folienabdeckung Baugrube sichern, Folienabdeckung Baugrubenwände (Böschungen) während der Bauzeit mit Planen abdecken, Planen gegen Witterung sichern und bis zum Auffüllen des Arbeitsraums bzw. Abschluss der Verbauarbeiten unterhalten und nach Aufforderung Folie aufnehmen und entsorgen, inkl. Entsorgungsgebühr.
2.170
Baugrube sichern, Folienabdeckung
1.050,00
2.190 Deklarationsanalyse Deklarationsanalyse Der Aushub ist für die Entsorgung und wiederverwendung labortechnisch chemisch zu prüfen und auf Kosten des AN einzustufen und nachzuweisen.
2.190
Deklarationsanalyse
1,00
Psch
Spezialtiefbauarbeiten Spezialtiefbauarbeiten
Spezialtiefbauarbeiten
3 Spezialtiefbauarbeiten
3
Spezialtiefbauarbeiten
Hinweis Vordimensionierung Verbau Bei der Kalkulation ist die Vordimensionierung Verbau IB Dammeyer vom 27.11.2025 zu beachten !
Hinweis Vordimensionierung Verbau
3. 10 Baustelleneinrichtung Baustelleneinrichtung Baustelleneinrichtung für Verbauarbeiten. Einrichten und Räumen der Baustelle. An- und Abtransport des Bohrgerätes und zugehöriger anderer Gerätschaften mit Zubehör inkl. eventueller erforderlicher Sperr- und Sondertransportgenehmigungen. Kompletter Auf- und Abbau des Bohrgerätes. Vorhaltung aller erforderlichen Absperr- und Schutzmaßnahmen im Zusammenhang mit den Verbauarbeiten. Bei der Geräteauswahl ist die beengte Platzsituation zu berücksichtigen.
3. 10
Baustelleneinrichtung
1,00
Stk
3. 20 Einmessen der Bohrachsen Einmessen der Bohrachsen Einmessen der Bohrachsen in eigenverantwortlicher Arbeit und Regie oder in Hinzuziehung des Vermessungsingenieurs auf eigene Kosten.
3. 20
Einmessen der Bohrachsen
1,00
Psch
3. 30 Berliner Verbau, h= 4,70 m Berliner Verbau, h= 4,70 m Berliner Verbau als Trägerbohlwand aus Stahlträgern und Verbauhölzern. - Sichtbare Verbauhöhe/ Einbindetiefe bis ca. -4,70 m - Annahme Stahlträger HEB-400, S235, Achsabstand a= 1,50 m   L gesamt= 10,0 m - Ausfachung KVH C24 d ¿ 6,0 cm - Siehe Statik Verbau - Baugrund gem. Bodengutachten - Grundvorhaltung 12 Wochen Maßgeblicher Lastfall: aktiver Erddruck lt. Statik-Vorbemessung Ausführung mit eingebohrten Stahlträgern und Verbauholz. Das Erd- und Bodenmaterial aus den Trägerbohrungen ist mangels Platz an der Baustelle direkt abzugfahren und zu entsorgen. Abrechnung über die Positionen als Volumen des Titels Erdarbeiten. Verfüllung der Bohrlöcher vorzugsweise mit Kies oder Schotter. Ausführung im Zuge der Erdbauarbeiten liefern und herstellen.
3. 30
Berliner Verbau, h= 4,70 m
75,00
3. 40 Hinterfüllung Verbau mit Füllsand Hinterfüllung Verbau mit Füllsand Hinterfüllung des Verbaus rückseitig mit Füllsand. Lagenweiser Einbau und Verdichtung. Ausfürhung parallel zur Herstellung der Holzausfachung.
3. 40
Hinterfüllung Verbau mit Füllsand
100,00
to
3. 50 Rückbau Holz der Verbauausfachung, als Zulage Rückbau Holz der Verbauausfachung, als Zulage Rückbau Holz der Verbauausfachung während der Verfüllung und zugehörige Entsorgung. Generelles Ziel ist der komplette Ausbau des Holzes gegenüber dem Verbleib im Boden.
3. 50
Rückbau Holz der Verbauausfachung, als Zulage
75,00
3. 60 Verlorene Stahlträger des Verbaus, als Zulage Verlorene Stahlträger des Verbaus, als Zulage Verlorene Stahlträger des Verbaus, als Zulage.
3. 60
Verlorene Stahlträger des Verbaus, als Zulage
17,50
to
3. 70 Verlorenes Holz der Verbauausfachung, als Zulage Verlorenes Holz der Verbauausfachung, als Zulage Verlorenes Holz der Verbauausfachungen, als Zulage.
3. 70
Verlorenes Holz der Verbauausfachung, als Zulage
20,00
3. 80 Abbrennen der Verbauträger Abbrennen der Verbauträger Abbrennen der Verbauträger, wenn das Zihen nicht möglich ist.
3. 80
Abbrennen der Verbauträger
13,00
Stk
3. 90 Verlängerte Vorhaltung Verbau Verlängerte Vorhaltung Verbau Verlängerte Vorhaltung des Verbaus aufgrund von nicht durch den Auftragnehmer zu verantwortende Umstände.
3. 90
Verlängerte Vorhaltung Verbau
2,00
Wo
3.100 Prüffähige Verbaustatik und Werkplanung Prüffähige Verbaustatik und Werkplanung Prüffähige Verbaustatik mit Positionsplan und Werkplanung. Grundlage Vordimensionierung IB Dammeyer. Mind. 3-facher eigenverantwortlicher Versand an den Prüfstatiker in Papier.
3.100
Prüffähige Verbaustatik und Werkplanung
1,00
Psch
Wasserhaltung Wasserhaltung
Wasserhaltung
4 Wasserhaltung
4
Wasserhaltung
4. 10 Offene Wasserhaltung mit Pumpensümpfen Offene Wasserhaltung mit Pumpensümpfen Offene Wasserhaltung in der Baugrubensohle mit Pumpensümpfen für Tagwasser und Schichtenwasser nach Erfordernis und nur in Abstimmung mit der Bauleitung für die erforderliche Vorhaltezeit der Tiefbauarbeiten inkl. aller erforderlichen Materialien und Geräte sowie den Ver- und Entsorgungsleitung liefern, anschließen, vorhalten und abbauen.
4. 10
Offene Wasserhaltung mit Pumpensümpfen
1,00
Psch
4. 20 Drainageleitung der Baugrubensohle Drainageleitung der Baugrubensohle Drainageleitung der Baugrubensohle aus flexiblem Dränrohr DN 100 aus PVC-U liefern und in einer ausreichenden Sickerpackung verlegen als temporäre Entwässerung von Tag- und Schichtenwasser nkl. Anschluss an RW-Kanalisation.
4. 20
Drainageleitung der Baugrubensohle
150,00
m
4. 30 Geschlossene Wasserhaltung Geschlossene Wasserhaltung 1. Einrichten der Baustelle Anfahrt zur Baustelle mit sämtlichen Gerätschaften und Zubehörteilen. Des Weiteren umfasst diese Position die Vorbereitung der Grundwasserabsenkanlage in Werk. 2. Herstellen einer Grundwasserabsenkung Installation einer Grundwasserabsenkungsanlage mit Spülfiltern.Herstellen der Absenkungsbrunnen mittels Spüldruckverfahren. Baugrubendimensionen Baugrubenmaße: 49,00 m x 17,20 m + je Seite 1m Bodenüberstand + Böschung + Arbeitsraum Zufahrtsrampe: 32,00 m x 4,6 m + je Seite 1m Bodenüberstand + Böschung + Arbeitsraum Baugrubensohle: ca. - 5,00 m tiefste Stelle für vorgebohrte 7 m Vakuumlanzen rund um die Baugrube. Umlauflänge ca. 210 m Oberkante Baugrube, für den Einsatz von mindestens 2 Vakuumaggregaten. Vakuumlanzen entsprechend der Bodenarten mit Filterkies verfüllen. Saugrohrleitung aus Stahl DN 100 ein- und ausbauen, einschließlich aller erforderlichen Armaturen, Form- und Passstücken mit Anschluss an die Vakuumfilteranlage. Vakuumanlage aus Vakuumerzeuger und Wasserpumpe mit Elektromotor ein- und ausbauen mit Anschluss an Rohrleitung. Elektrokabel liefern bis zum Anschluss an Baustromverteilerkasten bzw. Stromquelle, max. Länge bis 50 m. Elektroanschlüsse vornehmen. Inbetriebnahme der Grundwasserabsenkung. Einweisung in Anlagenfunktion. Übergabe der fertig installierten und funktionstüchtigen Anlage. Betrieb und Kontrolle bauseits. 3. Ableitung Druckrohrleitung DN 100 einschließlich aller erforderlichen Armaturen, Form- und Passstücken mit Anschluss an Vakuumfilteranlage auf gerader Strecke und als Abflussleitung zur von der Bauleitung anzuzeigenden Vorflut verlegen. 4. Vorhaltung der Grundwasserabsenkanlage Dies beinhaltet die Vorhaltung der Vakuumanlage und entsprechender Sammelleitung, Filterlanzen, Formstücke, Schläuche und des Ableitungssystems für einen Pauschalzeitraum von bis zu 90 Kalendertagen. Einschließlich wöchentlicher Anlagenwartung, 5. Räumen der Baustelle Anlagenrückbau und das Räumen der Baustelle inklusive Abtransport am Ende der Maßnahme.
4. 30
Geschlossene Wasserhaltung
1,00
Stk
4. 40 Verlängerte Vorhaltung der Grundwasserabsenkanlage Verlängerte Vorhaltung der Grundwasserabsenkanlage Dies beinhaltet die Vorhaltung der Vakuumanlage und entsprechender Sammelleitung, Filterlanzen, Formstücke, Schläuche und des Ableitungssystems über den pauschalen Zeitraum von bis zu 90 Kalendertagen hinaus für die Dauer der Bauzeit bzw. für die Dauer. für die die Grundwasserabsenkung benötigt wird.
4. 40
Verlängerte Vorhaltung der Grundwasserabsenkanlage
4,00
Stk/
4. 50 Verlängerte wöchentliche Anlagenwartung über Pauschalzeitraum Verlängerte wöchentliche Anlagenwartung über Pauschalzeitraum Überwachung der Funktionstüchtigkeit der Grundwasserabsenkungsanlage einmal pro Woche. Überprüfung der Anlage auf Dichtigkeit. Überprüfung der Betriebsstoffe des Vakuumerzeugers. Kontrolle der Elektroanschlüsse. über den pauschalen Zeitraum von bis zu 90 Kalendertagen hinaus.
4. 50
Verlängerte wöchentliche Anlagenwartung über Pauschalzeitraum
4,00
Stk/
Entwässerungskanalarbeiten Entwässerungskanalarbeiten
Entwässerungskanalarbeiten
5 Entwässerungskanalarbeiten
5
Entwässerungskanalarbeiten
Hinweistext Die Entwässerungsleitungen und Schächte werden fachgerecht, entsprechend der Vorschriften und DIN-Normen, ausgeführt (DIN EN 1610, Verlegung und Prüfung von Abwasserleitungen und kanälen). Es dürfen nur zugelassene Rohrmaterial verwendet werden. Vor Beginn der Arbeiten sind die Anschlusshöhen zu prüfen ! Auf die Einhaltung von Gefälle und Richtung sowie auf die Wasserdichtheit nach DIN 4033 wird geachtet. Dieses wird vor dem Verfüllen der Gräben und Schächte von AN eigenverantwortlich geprüft. Vor oder nach dem Auffüllen der Grund- Kanalleitungen wird, soweit die örtlichen Vorschriften dies fordern, eine Abnahme durch die zuständige Behörde erfolgen. Der Nachweis der Dichtigkeit wird mit einer Druckprüfung erbracht und durch Druckprotokolle belegt. Weiterhin wird der Verlegezustand durch eine TV-Kanaluntersuchung mit Videodokumentation, Fotos und Haltungsberichten nachgewiesen. Die Druckprüfung und TV-Befahrung erfolgt durch den Auftragnehmer. Die Lage sämtlicher Leitungen wird in einem Bestandsplan dokumentiert. Der Nachweis der Verdichtung in den Leitungsgräben erfolgt durch den AN. Die Anzahl der Untersuchungen erfolgt unter Berücksichtigung der geltenden Richtlinien und nach örtlicher Erfordernis. Die Untersuchungsergebnisse sind der Bauleitung unmittelbar nach den Verfüllarbeiten zu übergeben. Eine Zuordnung der Untersuchungsstelle durch Stationierung oder Aufmaß ist zu gewährleisten. Die Mehraufwendungen sind in den entsprechenden Positionen zu berücksichtigen. Eine gesonderte Vergütung erfolgt nicht.
Hinweistext
5. 10 Leitungsgraben für Anschlussleitungen herstellen Leitungsgraben für Anschlussleitungen herstellen Leitungsgraben für Anschlussleitungen herstellen Boden für Leitungsgraben profilgerecht ausheben. Die Grabentiefe wird gerechnet ab OK Gelände, ggf. unter Abzug des Oberbodens, bzw. ab OK des vorhandenen Planums. Strassenaufbruch wird gesondert berechnet. -Boden der Klassen 3 bis 6. -Grabentiefe bis 1,75 m, -lichte Grabenbreite 0,6-1,20 m. -Verbau und Wasserhaltung werden nicht gesondert berechnet. -Aushub, soweit zum Verfüllen geeignet, zur Wiederverwendung seitlich lagern, nach Verlegen der Leitung in Graben einbauen und verdichten. -Überschüssiger Bodenaushub geht in Eigentum AN -Abgerechnet wird nach Aufmaß. -Unterhaltung des Leitungsgrabens während der Verlegearbeiten ist bei der Kalkulation zu berücksichtigen. -Die Sicherung des Leitungsgrabens ist Leistung des AN's
5. 10
Leitungsgraben für Anschlussleitungen herstellen
131,25
5. 20 KG 2000 Rohr, DN 100 liefern und verlegen KG 2000 Rohr, DN 100 liefern und verlegen KG 2000 Rohr, DN 100 nach DIN EN 14758-1 liefern und verlegen einschließlich aller erforderlichen Anschlüsse -Rohrverbindung mit Steckmuffe, Dichtung mit Dichtring, Formstücke werden gesondert vergütet. -Ringsteifigkeitsklasse SN10 -Rohrauflager/Rohrbettung bis 30 cm über Rohrscheitel aus Sand oder Kiessand nach DIN 4033 herstellen. Material liefert AN. -Verlegetiefe bis 1,00 m unter Gelände/Erdplanum. -lichte Grabenbreite über 0,60 bis 1,00 m. -Verlegung nach DIN EN 1610 -Anschlüsse an Schächte werden nicht gesondert vergütet.
5. 20
KG 2000 Rohr, DN 100 liefern und verlegen
92,50
m
5. 30 KG 2000 Rohr, DN 150 liefern und verlegen KG 2000 Rohr, DN 150 liefern und verlegen KG 2000 Rohr, DN 150 nach DIN EN 14758-1 liefern und verlegen einschließlich aller erforderlichen Anschlüsse -Rohrverbindung mit Steckmuffe, Dichtung mit Dichtring, Formstücke werden gesondert vergütet. -Ringsteifigkeitsklasse SN10 -Rohrauflager/Rohrbettung bis 30 cm über Rohrscheitel aus Sand oder Kiessand nach DIN 4033 herstellen. Material liefert AN. -Verlegetiefe bis 1,50 m unter Gelände/Erdplanum. -lichte Grabenbreite über 0,80 bis 1,00 m. -Verlegung nach DIN EN 1610 -Anschlüsse an Schächte werden nicht gesondert vergütet.
5. 30
KG 2000 Rohr, DN 150 liefern und verlegen
50,00
m
5. 40 KG 2000 Rohr, DN 200 liefern und verlegen KG 2000 Rohr, DN 200 liefern und verlegen KG 2000 Rohr, DN 200 nach DIN EN 14758-1 liefern und verlegen einschließlich aller erforderlichen Anschlüsse -Rohrverbindung mit Steckmuffe, Dichtung mit Dichtring, Formstücke werden gesondert vergütet. -Rohrverbindung mit Steckmuffe, Dichtung mit Dichtring, Formstücke werden gesondert vergütet. -Ringsteifigkeitsklasse SN10 -Rohrauflager/Rohrbettung bis 30 cm über Rohrscheitel aus Sand oder Kiessand nach DIN 4033 herstellen. Material liefert AN. -Verlegetiefe bis 1,25 m unter Gelände/Erdplanum. -lichte Grabenbreite über 0,80 bis 1,25 m. -Verlegung nach DIN EN 1610 -Anschlüsse an Schächte werden nicht gesondert vergütet.
5. 40
KG 2000 Rohr, DN 200 liefern und verlegen
52,00
m
5. 50 KG 2000 Rohrverbindungen als Zulage Vorpos. bis DN 100 KG 2000 Rohrverbindungen als Zulage Vorpos. bis DN 100 KG 2000-Rohrverbindungen als Zulage Vorpos. bis DN 100 Bögen in allen handelsüblichen Krümmungen und Winkeln als Zulage zur Vorposition bis DN 100.
5. 50
KG 2000 Rohrverbindungen als Zulage Vorpos. bis DN 100
16,00
Stck
5. 60 KG 2000-Rohrverbindungen als Zulage Vorpos. bis DN 100 KG 2000-Rohrverbindungen als Zulage Vorpos. bis DN 100 KG 2000-Rohrverbindungen als Zulage Vorpos. bis DN 100 Einfach- und Mehrfachabzweige in allen handelsüblichen Winkeln als Zulage zur Vorposition bis DN 100/100.
5. 60
KG 2000-Rohrverbindungen als Zulage Vorpos. bis DN 100
2,00
Stck
5. 70 KG 2000-Rohrverbindungen als Zulage Vorpos. bis DN 100 KG 2000-Rohrverbindungen als Zulage Vorpos. bis DN 100 KG 2000-Rohrverbindungen als Zulage Vorpos. bis DN 100 Übergangsrohre  als Zulage zur Vorposition bis DN 100/ 100.
5. 70
KG 2000-Rohrverbindungen als Zulage Vorpos. bis DN 100
2,00
Stck
5. 80 Verschlussteller DN 100 PP Verschlussteller DN 100 PP Verschlussteller DN 100 PP Verschlussteller liefern und einbauen
5. 80
Verschlussteller DN 100 PP
2,00
Stck
5. 90 KG 2000-Rohrverbindungen als Zulage Vorpos. bis DN 150 KG 2000-Rohrverbindungen als Zulage Vorpos. bis DN 150 KG 2000-Rohrverbindungen als Zulage Vorpos. bis DN 150 Bögen in allen handelsüblichen Krümmungen und Winkeln als Zulage zur Vorposition bis DN 150.
5. 90
KG 2000-Rohrverbindungen als Zulage Vorpos. bis DN 150
4,00
Stck
5.100 KG 2000-Rohrverbindungen als Zulage Vorpos. bis DN 150 KG 2000-Rohrverbindungen als Zulage Vorpos. bis DN 150 KG 2000-Rohrverbindungen als Zulage Vorpos. bis DN 150 Übergangsrohre  als Zulage zur Vorposition bis DN 150/ 100.
5.100
KG 2000-Rohrverbindungen als Zulage Vorpos. bis DN 150
2,00
Stck
5.110 KG 2000-Rohrverbindungen als Zulage Vorpos. bis DN 150 KG 2000-Rohrverbindungen als Zulage Vorpos. bis DN 150 KG 2000-Rohrverbindungen als Zulage Vorpos. bis DN 150 Einfach- und Mehrfachabzweige in allen handelsüblichen Winkeln als Zulage zur Vorposition bis DN 150/100.
5.110
KG 2000-Rohrverbindungen als Zulage Vorpos. bis DN 150
2,00
Stck
5.120 KG 2000-Rohrverbindungen als Zulage Vorpos. bis DN 150 KG 2000-Rohrverbindungen als Zulage Vorpos. bis DN 150 KG 2000-Rohrverbindungen als Zulage Vorpos. bis DN 150 Doppelmuffe als Zulage zur Vorposition bis DN 150.
5.120
KG 2000-Rohrverbindungen als Zulage Vorpos. bis DN 150
2,00
Stck
5.130 Verschlussteller DN 150 PP Verschlussteller DN 150 PP Verschlussteller DN 150 PP Verschlussteller liefern und einbauen
5.130
Verschlussteller DN 150 PP
1,00
Stck
5.140 KG 2000-Rohrverbindungen als Zulage Vorpos. bis DN 200 KG 2000-Rohrverbindungen als Zulage Vorpos. bis DN 200 KG 2000-Rohrverbindungen als Zulage Vorpos. bis DN 200 Bögen in allen handelsüblichen Krümmungen und Winkeln als Zulage zur Vorposition bis DN 200.
5.140
KG 2000-Rohrverbindungen als Zulage Vorpos. bis DN 200
2,00
Stck
5.150 KG 2000-Rohrverbindungen als Zulage Vorpos. bis DN 200/150 KG 2000-Rohrverbindungen als Zulage Vorpos. bis DN 200/150 KG 2000-Rohrverbindungen als Zulage Vorpos. bis DN 200 Übergangsrohre  als Zulage zur Vorposition bis DN 200/ 150.
5.150
KG 2000-Rohrverbindungen als Zulage Vorpos. bis DN 200/150
1,00
Stck
5.160 Verschlussteller DN 200 PP Verschlussteller DN 200 PP Verschlussteller DN 200 PP Verschlussteller liefern und einbauen
5.160
Verschlussteller DN 200 PP
1,00
Stck
5.170 Schachtanschluss an Bestandsschacht herstellen (Zulage) für RW und SW Schachtanschluss an Bestandsschacht herstellen (Zulage) für RW und SW Schachtanschluss an Bestandsschacht herstellen (Zulage) für RW-SW Rohrleitung an Schacht anschliessen, Anschluss dichten. Berechnet wird der Mehraufwand für das Herstellen des Anschlusses (einschl. evtl. Formstücke) gegenüber der bis zur Innenfläche des Schachtes durchgemessenen Rohrleitung. -Rohrleitung DN 150-200 PP, -Anschlußschacht aus Betonfertigteilen, bzw. aus Mauerwerk, Wandungsstärke 20-30 cm, -Öffnung für Rohranschluss wird nicht gesondert berechnet. -Anschluss mit Schachtfutter und Gelenkstück. -einschließlich Ausbildung des Gerinnes im Anschlußschacht.
5.170
Schachtanschluss an Bestandsschacht herstellen (Zulage) für RW und SW
2,00
Stck
5.180 RW Schacht komplett herstellen RW Schacht komplett herstellen RW Schacht komplett herstellen einschließlich aller hierfür erforderlichen Erdarbeiten, - Schachtdurchmesser DN 1000, - Höhe bis 1,50 m, - Abdeckung Kl. D mit dämpfender Einlage und Angleichung in jeder Art von Befestigung. -Ausbildung des Gerinnes entsprechend der Erfordernisse -Offenes Gerinne mit geklinkertem Gerinne- Berme -Boden der Klassen 3 bis 6. -Aushub, soweit zum Verfüllen geeignet, zur Wiederverwendung seitlich lagern, nach dem Setzen des Schachtes die Baugrube verfüllen und verdichten. -Überschüssiger Bodenaushub geht in Eigentum des AN über und wird beseitigt.
5.180
RW Schacht komplett herstellen
2,00
Stck
5.190 SW-Schacht komplett herstellen SW-Schacht komplett herstellen SW-Schacht komplett herstellen einschließlich aller hierfür erforderlichen Erdarbeiten, - Schachtdurchmesser DN 1000, - Höhe bis 2,00 m, - Abdeckung Kl. D mit dämpfender Einlage und Angleichung in jeder Art von Befestigung. -Ausbildung des Gerinnes entsprechend der Erfordernisse -Offenes Gerinne mit geklinkertem Gerinne- Berme -Boden der Klassen 3 bis 6. -Aushub, soweit zum Verfüllen geeignet, zur Wiederverwendung seitlich lagern, nach dem Setzen des Schachtes die Baugrube verfüllen und verdichten, -Überschüssiger Bodenaushub geht in Eigentum des AN über und wird beseitigt.
5.190
SW-Schacht komplett herstellen
2,00
Stck
5.200 Leitungszone verfüllen Leitungszone verfüllen Leitungszone verfüllen geeigneten Boden in Leitungszone nach DIN 4033 einbauen und verdichten. Boden liefert AN. Material: Sand 0/2 mm, Leitungszone vom Rohrauflager bis 30 cm über Rohrscheitel, Einbau auf gesamter Grabenbreite.
5.200
Leitungszone verfüllen
89,00
m3
5.210 Warnband für Regenwasserleitung Warnband für Regenwasserleitung Warnband für Regenwasserleitung  liefern und über der Rohrleitungszone einbauen
5.210
Warnband für Regenwasserleitung
200,00
m
5.220 Leitungsgraben mit Boden verfüllen Leitungsgraben mit Boden verfüllen Leitungsgraben mit Boden verfüllen einbaufähiges Verfüllmaterial wird durch AN geliefert, Boden liefern und einbauen Geeigneten verdichtungsfähigen Boden liefern und in Leitungsgraben profilgerecht einbauen und verdichten -Material = Grobkörniger Boden. -Leitungsgräben verfüllen. -Abgerechnet wird nach Aufmaß.
5.220
Leitungsgraben mit Boden verfüllen
81,00
m3
5.230 Lieferung und Einbau einer Ringraumdichtung Ringraumdichtung DN 70, Mauerdurchführung Liefern und fachgerecht einbauen, druckwasserdicht, EPDM oder gleichwertig, komplett mit Montagematerial. Lieferung und Einbau einer Ringraumdichtung Ringraumdichtung DN 70, Mauerdurchführung Liefern und fachgerecht einbauen, druckwasserdicht, EPDM oder gleichwertig, komplett mit Montagematerial. Lieferung und Einbau einer Ringraumdichtung (Mauerdurchführung) für Rohr DN 70 Einbau nach DIN 18533 (Abdichtung von Bauwerken) oder DWA-M 149-3 (Rohrdurchführungen), Lieferung einer Ringraumdichtung für Mauerdurchführung, geeignet für Rohrdurchmesser DN 70. Ausführung als druckwasserdichte, dauerelastische Dichtung zur Abdichtung des Ringspaltes zwischen Rohr und Kernbohrung/Mauerhülse. Material: EPDM oder gleichwertig, beständig gegen Wasser, Abwasser und übliche Bauchemikalien. Druckdicht bis mindestens 1,5 bar. Montage gemäß Herstellerangaben, gleichmäßiges Anziehen der Schrauben zur Sicherstellung der Abdichtwirkung. Einbau in vorhandene Kernbohrung oder eingebaute Mauerdurchführungshülse. Abdichtung muss dauerhaft dicht und wartungsfrei sein. Lieferung einschließlich aller erforderlichen Befestigungs- und Montagematerialien. Kontrolle der Dichtheit nach Einbau.
5.230
Lieferung und Einbau einer Ringraumdichtung Ringraumdichtung DN 70, Mauerdurchführung Liefern und fachgerecht einbauen, druckwasserdicht, EPDM oder gleichwertig, komplett mit Montagematerial.
2,00
Stck
5.240 Drainrinne liefern und setzen Drainrinne liefern und setzen Drainrinne liefern und setzen NW 100 gem. DIN19580 Kl. C incl. Arretiertem Rost aus Kugelgraphitguß, ohne Sohlgefälle, einschließlich Anschlußöffnungen und Stutzen. - in 15cm Unterbeton versetzen mit Betonrückenstütze Hersteller: ‘....................................................‘ Typ: ‘....................................................‘ (vom Bieter auszufüllen)
5.240
Drainrinne liefern und setzen
10,50
m
5.250 Sinkkasten/Einlaufkasten für Drainrinne NW 100 Sinkkasten/Einlaufkasten für Drainrinne NW 100 Sinkkasten/Einlaufkasten für Drainrinne zur Vorposition NW 100 liefern und einbauen mit Kunststoff-Eimer Hersteller: ‘....................................................‘ Typ: ‘....................................................‘ (vom Bieter auszufüllen)
5.250
Sinkkasten/Einlaufkasten für Drainrinne NW 100
3,00
Stck
5.260 Punkteinlauf liefern und setzen Punkteinlauf liefern und setzen Punkteinlauf komplett liefern und setzen Punkteinlauf mit umlaufender Zarge aus verzinktem Stahl, mit Geruchsverschluss, mit Schmutzfangeimer aus Kunststoff, mit integriertem KG-Rohranschluss DN/OD 110 und Guss-Längsstabrost Stababstand 8 mm, KTL-beschichtet, Kl. D 400 L/B/H 300x300x400 mm Punktablauf komplett liefern und setzen Einbauhinweise des Herstellers sind zu berücksichtigen. Hersteller: ‘....................................................‘ Typ: ‘....................................................‘ (vom Bieter auszufüllen)
5.260
Punkteinlauf liefern und setzen
2,00
Stck
5.270 Wasserdichtheit prüfen Wasserdichtheit prüfen Wasserdichtheit prüfen Entwässerungsrohrleitung auf Wasserdichtheit prüfen. Erforderliche Verankerungen und Rohrverschlüsse herstellen und beseitigen. Notwendigen Füllstoff liefern und ableiten. -Rohr DN 100 bis 220 mm.
5.270
Wasserdichtheit prüfen
194,00
m
5.280 Schächte auf Wasserdichtheit prüfen Schächte auf Wasserdichtheit prüfen Schächte auf Wasserdichtheit prüfen Schächte auf Wasserdichtheit prüfen. Erforderliche Verankerungen und Rohrverschlüsse herstellen und beseitigen. Notwendigen Füllstoff liefern und ableiten. -Schachtdurchmesser DN 1000 bis 1200 mm. -Schachttiefe 1,50-2,00m.
5.280
Schächte auf Wasserdichtheit prüfen
4,00
Stck
5.290 TV-Kanaluntersuchung TV-Kanaluntersuchung TV-Kanaluntersuchung einschließlich aller Nebenarbeiten, Fotos, Haltungsberichte und Videobänder, von DN 150 - DN 200 PP.
5.290
TV-Kanaluntersuchung
194,00
m
5.300 Mobile Kanaluntersuchungskamera für Anschlußleitungen Mobile Kanaluntersuchungskamera für Anschlußleitungen Mobile Kanaluntersuchungskamera für Anschlußleitungen Mobile Kanaluntersuchungskamera Einsatz einer tragbaren Farb-Kamera mit dem entsprechendem Zubehör zur Untersuchung der Anschlußleitungen. Dokumentation auf Speicherkarte, die dem AG übergeben wird. Einschl. Erstellung eines Untersuchungsprotokolls. Formblatt (je 1 DIN A 4 Seite) liefert AG. Abrechnung anhand der Untersuchungsprotokolle.Die mobile Kamerauntersuchung erfolgt an der offenen Baugrube in Beisein des Bauleiters. Die Kamera ist daher für gesamte Bauzeit ständig vorzuhalten. Kameratyp Hersteller:
5.300
Mobile Kanaluntersuchungskamera für Anschlußleitungen
95,00
m
5.310 Bestandsplan für Regen- Schmutzwasserkanal Bestandsplan für Regen- Schmutzwasserkanal Bestandsplan für Regen- und Schmutzwasserkanal sowie weitere Versorgungsleitungen (z.¿B. Beleuchtung, Leerrohrtrassen usw.). Aufnahme in Lage und Höhe (Koordinatensystem nach entsprechender Abstimmung). Der Bestandsplan ist als DWG-/DXF-Datei sowie als PDF- und PLT-Datei auf CD zu übergeben. Zusätzlich ist der Bestandsplan vierfach als Farbausdruck an die Bauleitung zu übergeben. Maßstab 1:250.
5.310
Bestandsplan für Regen- Schmutzwasserkanal
1,00
Stck